- Physical-item (drawing)
- Γραφιστικό υλικό
- Υλικό Δημοτικής Βιβλιοθήκης Καλυβίων
- Λοιπά τεκμήρια
- 29 June 1976
- Δημητσάντου - Κρεμέζη, Αικατερίνη | Ιωνά, Αλεξάνδρα | Συρμά, Ελένη | Βεντήρης, Βασίλης
- 1 : 20
- Αθήνα
- 1976
- Παιανία
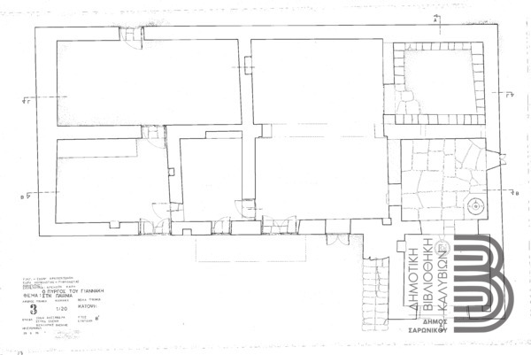
- Κάτοψη
-
Αθήνα:
Εθνικό Μετσόβειο Πολυτεχνείο - Σχολή Αρχιτεκτόνων - Έδρα Μορφολογίας - Ρυθμολογίας, 1976
- 9-02-2022
- Αναφορά Δημιουργού-Μη Εμπορική Χρήση-Όχι Παράγωγα Έργα 4.0 Διεθνές (CC BY-NC-ND 4.0)
-
- Πρωτότυπο
- Δημητσάντου - Κρεμέζη, Αικατερίνη [Συγγραφέας]. Το καμαρόσπιτο της Αττικής
Ο Πύργος του Γιαννάκη στην Παιανία
Αvailable digital documents
Κάτοψη
Description: ?3.pdf (pdf) [entire] Book Reader
Licence: Αναφορά Δημιουργού-Μη Εμπορική Χρήση-Όχι Παράγωγα Έργα 4.0 Διεθνές (CC BY-NC-ND 4.0)
Size: 0.4 MB


