- Ψηφιακό τεκμήριο (Σχέδιο)
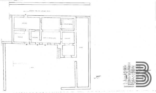
- Ο Πύργος του Γιαννάκη στην Παιανία. Αριθμός πίνακα 1, Γενική Κάτοψη [1976-6-29]
- Κείμενο
-
- Πρωτότυπο
- Αναφορά Δημιουργού-Μη Εμπορική Χρήση-Όχι Παράγωγα Έργα 4.0 Διεθνές (CC BY-NC-ND 4.0)
Γενική Κάτοψη
Διαθέσιμα ψηφιακά αρχεία
Περιγραφή: ?1.pdf (pdf) [entire] Ξεφύλλισμα pdf
Άδεια: Αναφορά Δημιουργού-Μη Εμπορική Χρήση-Όχι Παράγωγα Έργα 4.0 Διεθνές (CC BY-NC-ND 4.0)
Μέγεθος: 204 kB


